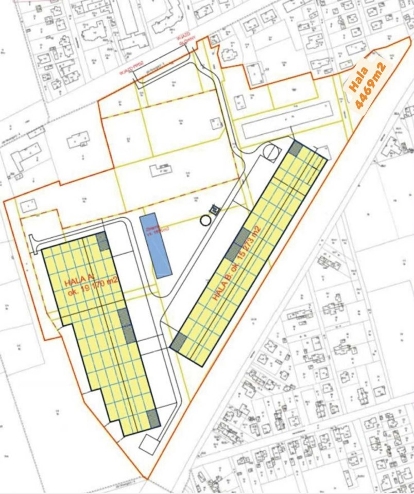
4469.00 m²
223,76 zł/m2
AHO-HS-255
Oblicz ratę kredytu

1 000 000 zł

Hala na sprzedaż
Nowa oferta

Szczegóły oferty

Symbol oferty AHO-HS-255
Powierzchnia 4 469,00 m²
Powierzchnia działki [m2] 1 891 m²
Przeznaczenie działki przemysłowa
Standard
Wymiary działki 79x57 m
Zagosp. działki zagospodarowana
Ukształtowanie działki płaska
Kształt działki prostokąt
Przeznaczenie hali produkcyjny, magazynowy, produkcyjno-magazynowy
Dojazd ASFALTOWA
Otoczenie zakład produkcyjny
Położenie teren przemysłowy
Plac utwardzany tak

Opis nieruchomości

Na sprzedaż hala przemysłowa położona w Nowogardzie, usytuowana na działce o powierzchni
4469 m². Nieruchomość idealnie sprawdzi się jako zaplecze produkcyjne, magazynowe lub logistyczne.
Hala ok 2tys m2 zaprojektowana w sposób umożliwiający elastyczne wykorzystanie przestrzeni. Obiekt posiada pełne uzbrojenie techniczne – dostępne są wszystkie niezbędne media. Teren wokół hali został przystosowany do obsługi transportu ciężkiego. Szeroki wjazd oraz utwardzony plac manewrowy pozwalają na swobodne poruszanie się samochodów typu TIR. Dodatkowym atutem jest bezpośrednia bliskość bocznicy kolejowej, co znacząco zwiększa potencjał logistyczny nieruchomości. Lokalizacja zapewnia sprawną komunikację oraz szybki dojazd do głównych tras, a duża powierzchnia działki daje możliwość dalszej rozbudowy lub zagospodarowania według potrzeb przyszłego właściciela.

 

Najważniejsze atuty:
• przestronna i funkcjonalna hala przemysłowa
• duży teren inwestycyjny z potencjałem rozwojowym
• doskonałe warunki dla działalności produkcyjnej i magazynowej
• bardzo dobre zaplecze transportowe (TIR + kolej) 
Nieruchomość dostępna od ręki.

Lokalizacja nieruchomości

Kalkulatory

Kalkulator kredytowy

Wysokość raty

PLN
%

Kalkulator kosztów

Podatek od czynności cywilno-prawnych

Taksa notarialna
(opłata notarialna)

Wniosek o wpis do WKW

VAT od prowizji
agencji nieruchomości

Vat od taksy notarialnej
(opłaty notarialnej)

Prowizja agencji nieruchomości

Wypisy aktu notarialnego

Razem

Uwaga: mogą wystąpić dodatkowe opłaty za założenie księgi wieczystej oraz ustanowienie hipoteki.

PLN
PLN
PLN
PLN
PLN
PLN
%
PLN

Proszę wprowadzić poprawne imię i nazwisko
Proszę wprowadzić poprawny numer telefonu
Proszę wprowadzić poprawny adres e-mail
Proszę zaznaczyć wymagane zgody
Rozwiąż równanie:
11 1
Niepoprawny wynik