Działka na sprzedaż Nowogard

70000.00 m²
160,00 zł/m2
AHO-GS-261
Oblicz ratę kredytu

11 200 000 zł

Działka na sprzedaż
Nowa oferta

Szczegóły oferty

Symbol oferty AHO-GS-261
Powierzchnia 70 000,00 m²
Przeznaczenie działki przemysłowa, usługowa
Standard
Zagosp. działki częściowo zagospodarowana
Ukształtowanie działki płaska
Kształt działki nieregularny
Ogrodzenie działki brak
Dojazd ASFALTOWA
Otoczenie zakład produkcyjny
Położenie teren przemysłowy
Prąd jest

Opis nieruchomości

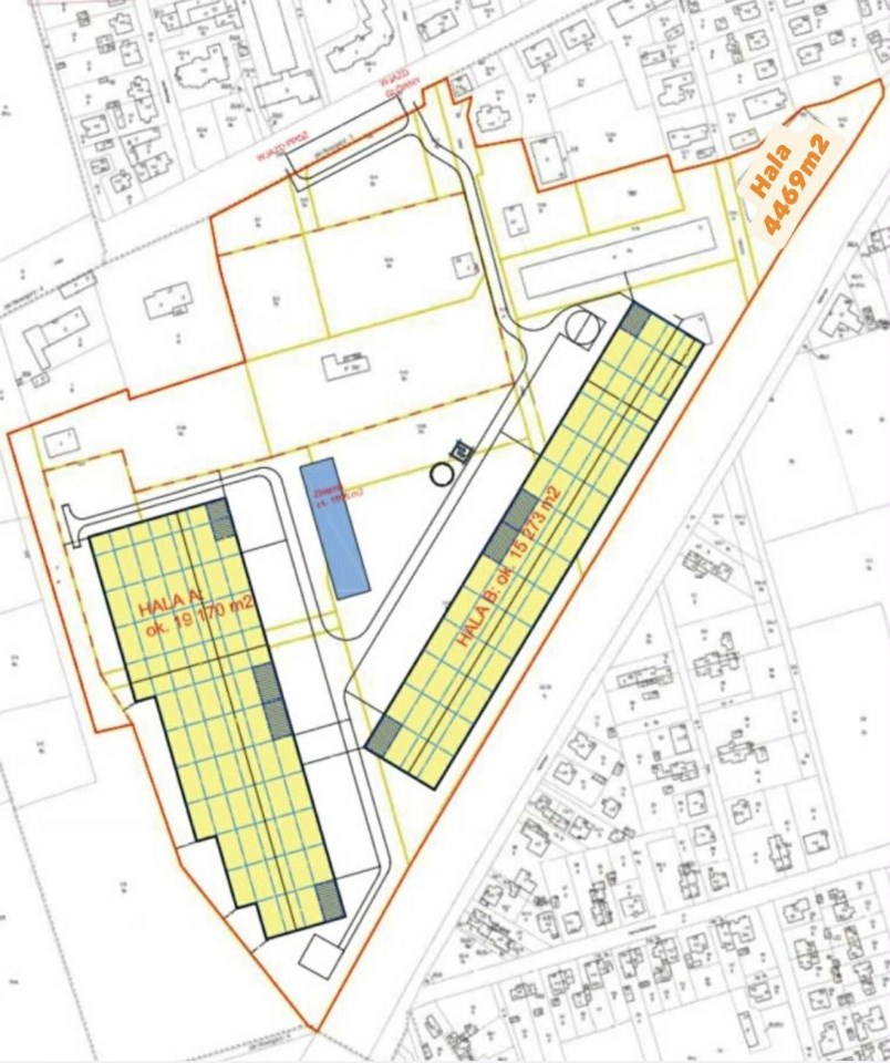
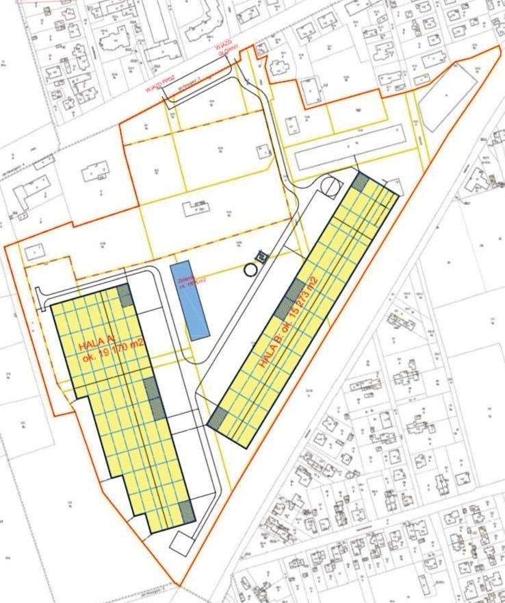
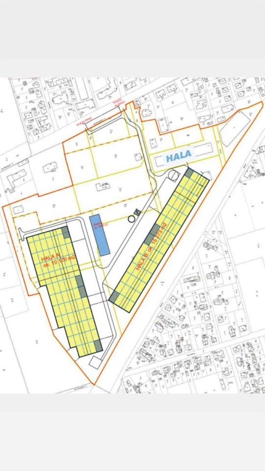
Na sprzedaż atrakcyjna działka o powierzchni 7 ha (70 000 m²), położona w Nowogardzie , w rejonie ul. 3-go Maja.  Cena: 160 zł/m² + VAT
   Nieruchomość oferowana jest wraz z gotową koncepcją budowy dwóch hal mogących posłużyć do celów logistycznych/produkcyjnych/magazynowych, co czyni ją idealną propozycją pod kompleks przemysłowy.


Potencjał inwestycyjny

Działka doskonale sprawdzi się jako:
    •    zaplecze produkcyjne,
    •    centrum magazynowe,
    •    baza logistyczna,
    •    kompleks przemysłowy z możliwością dalszej rozbudowy.

Duża powierzchnia terenu pozwala na elastyczne zagospodarowanie według potrzeb przyszłego właściciela.

Istniejąca infrastruktura
W bezpośrednim sąsiedztwie znajduje się hala o powierzchni ok. 2 000 m², zaprojektowana w sposób umożliwiający elastyczne wykorzystanie przestrzeni.
Obiekt posiada pełne uzbrojenie techniczne - dostępne są wszystkie niezbędne media.

Teren wokół hali został przystosowany do obsługi transportu ciężkiego:
    •    szeroki wjazd,
    •    utwardzony plac manewrowy dla samochodów typu TIR,
    •    bezpośrednia bliskość bocznicy kolejowej- znacząco zwiększająca potencjał logistyczny.

Działka położona jest w dobrze skomunikowanej części miasta, z szybkim dojazdem do głównych tras, co zapewnia sprawną organizację transportu krajowego i międzynarodowego.



 

Lokalizacja nieruchomości

Kalkulatory

Kalkulator kredytowy

Wysokość raty

PLN
%

Kalkulator kosztów

Podatek od czynności cywilno-prawnych

Taksa notarialna
(opłata notarialna)

Wniosek o wpis do WKW

VAT od prowizji
agencji nieruchomości

Vat od taksy notarialnej
(opłaty notarialnej)

Prowizja agencji nieruchomości

Wypisy aktu notarialnego

Razem

Uwaga: mogą wystąpić dodatkowe opłaty za założenie księgi wieczystej oraz ustanowienie hipoteki.

PLN
PLN
PLN
PLN
PLN
PLN
%
PLN

Proszę wprowadzić poprawne imię i nazwisko
Proszę wprowadzić poprawny numer telefonu
Proszę wprowadzić poprawny adres e-mail
Proszę zaznaczyć wymagane zgody
Rozwiąż równanie:
11 8
Niepoprawny wynik